Unreine Arbeitsräume

Unreine Arbeitsräume
Kombinieren Sie nach Belieben unsere Steckbeckenspüler der Geysir Serie mit dem Medizinischen Mobiliar ProLine.
Für ein perfektes Ergebnis, exakt nach Maß. In bewährter, langlebiger Qualität. Egal ob in Edelstahl, oder Stahlblech, pulverbeschichtet. Anders als herkömmliche Möbel für Arbeitspflegeräume sind Geysir Arbeitspflege-kombinationen von Grund auf darauf ausgerichtet, der Keim- und Milieubildung entgegenzuwirken. Zum Beispiel verfügen sie generell über komplett umlaufende, ausvulkanisierte Türdichtungen aus einem Stück, ebenso über maßgeschnittene Arbeitsflächen – fugenfrei bis zur Wand. Je nach Wunsch und Erfordernis z.B. mit zusätzlichen Spülbecken, Einhebel-Mischbatterien, Desinfektionsmittelzumischgeräten, Wandschränken oder Lagerregalen.
saubere Arbeitspflegekombinationen
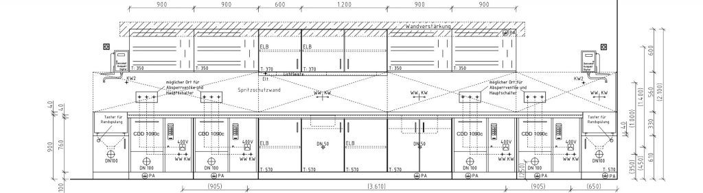
Bei Lischka erhalten Sie die perfekte Verbindung von Steckbeckenspülern und medizinischem Mobiliar. Unsere Geysir Arbeitspflegekombinationen verbinden moderne Hygienetechnik und medizinisches fungistatisches Mobiliar zu hoch funktionalen Ausstattungen für Stations- und Arbeitsräume in Kliniken, Praxen oder Pflegeheimen. Die APK zeichnen sich durch eine hohe Qualität und solide Bauweise aus und sind in zahlreichen Kombinationsvarianten lieferbar. Die wartungsfreundlichen, pflegeleichten Oberflächen sind bestens für hohe Belastungen geeignet und erhältlich in fein geschliffenem Edelstahl oder elektrolytisch verzinktem Stahlblech mit desinfektionsmittelbeständiger Kunststoffbeschichtung aus aufgeschmolzenem Lackpulver. Für anspruchsvolle Hygienekonzepte bieten wir eine Beschichtung mit antimikrobieller Wirkung. Ein weiterer Pluspunkt ist die farbliche Anpassung an das gewünschte Raum- und Farbkonzept.


sichere Lagerregale für Steckbecken und Urinflaschen
Nach der Reinigung und Desinfektion der Utensilien in dem Steckbeckenspüler der Serie GEYSIR empfiehlt es sich, diese in geeigneten Lagerregalen bis zur nächsten Verwendung aufzubewahren. Für die Lagerung von Urinflaschen empfiehlt es sich, diese in aufgesteckter Art und Weise zu lagern, wobei für die Aufbewahrung von Steckbecken / Stuhleimer die liegende Lagerung empfohlen wird.


sparsame Desinfektionsmittelzumischgeräte
Die dezentralen computergesteuerte Dosiergeräte ProDesco eignen sich bestens zur Herstellung gebrauchsfertiger Desinfektions- und/oder Reinigerlösungen. Das Einfachdosiergerät bietet die Möglichkeit, eine gebrauchsfertige Lösung aus einem Konzentrat herzustellen, ganz einfach per Knopfdruck. Das Doppeldosiergerät eignet sich hervorragend zur Herstellung von Lösungen zweier unterschiedlicher Präparate, so dass bspw. über ein Dosiergerät Desinfektionsmittellösungen als auch Reinigungslösungen hergestellt werden können. Das Einfach-als auch das Doppeldosiergerät sind als wandhängendes Modell verfügbar. Selbstverständlich werden alle Geräte. inkl. einer Haltevorrichtung für den jeweiligen Konzentratkanister ausgeliefert.


Technische Daten
- Dosierung: 0,25-10% (4% bei 850l/h) (max. Toleranz +5%)
- Zwei direkt zu entnehmende Dosiermengen im Vordergrund am Gerät einstellbar
- erforderlicher Fließdruck min. 1,5 bar – max. 7 bar
- Systemtrennung zum Trinkwasserschutz nach DIN 1988 DVGW, Arbeitsblatt W503
- 230 V/ 50 Hz / Steuerspannung 24 / 10V / 105 W max.
Bei Fragen zögern Sie nicht unseren Vertrieb über unser Kontakformular zu kontaktieren.
